Schlossgasse 20, Haus Hart
Walter Nieß:
Das Anwesen gehört im 19. Jahrhundert dem Schlossermeister Müller, einem Büdinger Original und Geschichtsfreund. Es ist als ein dreistöckiges Wohnhaus ein überaus stattlicher Bau, im Erdgeschoss massiv, mit gekuppelten Fenstern und einem prachtvollen Eingangsportal. Im Flur sind Stuckarbeiten in Form von Engelsköpfen mit Fruchtgehängen an den Wänden. Der Keller hat ein Tonnengewölbe.
Der Altstadtturm im Stadtgraben ist vom Stall aus zugänglich und wird als Keller genutzt. Die Holzkonstruktion atmet den Geist des beginnenden 17. Jahrhunderts. Beachtenswert sind die herrschaftlichen Doppeltüren an allen Gelassen innerhalb des Hauses. Im liegenden Dachstuhl sind römische Zahlen, der straßenseitige Giebel ist stark vorgekragt.
Im Anschluss hieran befand sich das „Meierhofsche Haus“, ebenfalls ein altes Burgmannenhaus, zwischen der heutigen Hofreite Hart und dem späteren Viehhof des Steinernen Hauses gelegen. Dieses Anwesen wurde zum Bau der Lutherischen Kirche abgebrochen.
Quelle: Dr. Walter Nieß: Burgmannenhäuser der Schlossgasse, Büdinger Häuserbuch I. Band, Geschichtswerkstatt Büdingen 2007.
Burgmannenhaus mit massivem Sockelgeschoß, zweiteiligen, profilierten Fenstern, Renaissance-Portal, zweigeschossiger Fachwerkoberbau mit umlaufendem Karnies. Datiert 1609 im Türsturz, in der Einfahrt datiert 1610.
Quelle: denkmalpflege-hessen.de
Straßenansicht



Eingangsportal

Fenster-Details

Tor Straßenseite

Hofansicht

Türen im Hof

Hinteres Portal

Wehrturm Querschnitt

Zweites Obergeschoss

Erstes Obergeschoss

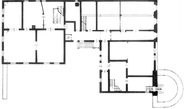
Erdgeschoss


